Вы здесь

Отель Caldor

Отель Caldor расположен в пригороде Вены. Двухэтажное здание гостиницы отличается оригинальным внешним обликом благодаря перфорированной металлической ленте, протянувшейся вдоль изогнутого фасада; графический орнамент перфорации повторяет начертание логотипа отеля.

Площадь комнат очень невелика – от десяти до двенадцати метров, но благодаря правильной организации пространства они не кажутся тесными. В выборе материалов для отделки номеров также прослеживается разумный минимализм. Ванные комнаты выгорожены с помощью матовых стеклянных панелей с раздвижными дверями. Такое функциональное решение позволяет не загромождать и без того маленькие номера и визуально облегчает пространство. Регистрация в отеле осуществляется круглосуточно.

Рекламный буклет отеля призывно гласит: «Caldor - Чтобы хорошо выспаться. Самостоятельная регистрация в отеле, круглосуточно и без промедления». Помимо соседства с федеральной трассой В16 отель может похвастаться близким расположением к Shopping Centre of Austria – крупнейшему универмагу на территории Австрии. В связи с этим один из вариантов позиционирования услуг гостиницы – это приют для утомленного шоппера.

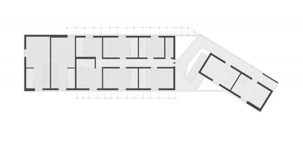
Здание отеля вытянуто вдоль шоссе и в центральной части имеет поворотный изгиб. Благодаря такому расположению оно прекрасно просматривается с трассы, вне зависимости от направления и полосы движения. В точке изгиба находится вход в здание, с фойе, точкой регистрации и необходимыми сервисами.

Перфорированный стальной экран, протянувшийся вдоль второго этажа, выполняет функцию защиты от солнца и дождя. Малобюджетный характер постройки, разумная экономия при выборе отделочных материалов позволяют поддерживать вполне умеренные расценки на размещение в номерах.

 


 

 

 

 

 

Читайте также
23.07.2003 / просмотров: [totalcount]
Полноценная среда обитания человека невозможна без развитой системы отдыха и оздоровления. Она включает озелененные пространства вблизи жилища,...
23.07.2003 / просмотров: [totalcount]
Туризм – одно из наиболее динамичных явлений современного мира. В последнее время он приобрел колоссальные темпы роста и масштабы влияния на...
23.07.2003 / просмотров: [totalcount]
В соответствии с «Национальной программой развития туризма Республики Беларусь на 2001—2005 годы» утвержденной Советом Министров...