You are here

МУЛЬТИКОМФОРТНЫЙ ДОМ ПОД МИНСКОМ – НЕ ТОЛЬКО ОБСУДИЛИ, НО И УВИДЕЛИ

В Дзержинске, что под Минском, обретает законченные формы первый в Беларуси энергоэффективный индивидуальный дом. Это двухэтажное жилище с мансардной крышей и отапливаемой площадью порядка 200 м2 идет под брендом "Мультикомфортный дом ISOVER". Его успешное строительство и эксплуатация волнуют в первую очередь компании ИООО "Сен-Гобен Строительная Продукция БелРус" и ООО "Современный каркасный дом". Первую – как белорусского представителя концерна "Сен-Гобен" (Saint-Gobain), вторую – как изготовителя конструктивных элементов, подрядчика и…
Третья ипостась для "Современного каркасного дома" вытекает из того факта,
что проживать в рассматриваемом жилище будет со своей семьей директор
этой дзержинской компании.

Узнать вышесказанное и многое другое можно было на международной практической конференции "Мультикомфортный дом. Строительные технологии XXI века". Состоялась она в Минске, в здании Министерства архитектуры и строительства 11 апреля 2012 г., а день спустя – в Дзержинске, непосредственно на стройплощадке.

Обещания выполняются

Модератор конференции, главный редактор журнала "Архитектура и строительство" Павел Ткачик, вводя собравшихся на конференции в курс дела, отметил, что интерес к дзержинскому мультикомфортному дому (далее – МК-дом) и вообще к энергоэффективным индивидуальным домам велик и со стороны министра архитектуры и строительства Анатолия Ничкасова. А поскольку участие белорусского государства в архитектурно-строительных делах страны значительно, интерес министра немалого стоит.

Представлявшая на конференции министерство Галина Павлова, начальник Главного управления научно-технической и инновационной политики, проинформировала о строительно-энергетическом контексте Беларуси, в который предначертано вписаться первому белорусскому МК-дому:

– Во всех регионах страны построено уже более 800 тыс. м2 энергоэффективного жилья, в том числе более 400 тыс. м2 в 2011 г. К 2015 г. планируется не менее 60% всего жилья в Беларуси строить в энергоэффективном формате. При этом удельное энергопотребление такого жилья не должно превышать 30 кВт•ч/м2 в год. Но это не предел. Перед учеными поставлена задача – разработать к 2020 г. дома с практически нулевым энергопотреблением. Большое внимание уделяется альтернативным и возобновляемым источникам энергии. Правительством разработана программа по использованию геотермальной энергетики с применением тепловых насосов для отопления зданий. Это особенно эффективно для объектов, удаленных от теплотрасс. Беларусь – энергозависимая страна, поэтому энергоэффективное строительство будет у нас набирать темпы.

Елена Шиенок, генеральный директор компании "Сен-Гобен Строительная Продукция БелРус", с чувством законной гордости сообщила просвещенной публике: "Все наши обещания по первому в Беларуси мультикомфортному дому выполняются". И это действительно так – стройка, которую показали участникам конференции, говорит сама за себя. А даны обещания были год назад, на предыдущей, второй по счету конференции по известной теме. Теперь изложение части того, что рассказала гендиректор:

– "МК-дом ISOVER" – всемирный проект концерна "Сен-Гобен". Он реализуется в рамках его фирменной концепции рационального строительства Habitat. Суть концепции – в комплексном подходе к созданию комфортной среды для проживания, работы и отдыха человека. Когда мы получаем счета на оплату нашего жилья – начинаем задумываться, особенно сильно зимой, над указанными в них высокими суммами. Habitat и мультикомфортный дом кардинально решают проблему энергоэффективности, снижения эксплуатационных затрат. Нас спрашивают: сможем ли мы довести проект в Дзержинске до конца, как задумали? Отвечаем – да. Решающий фактор успеха "Сен-Гобена" в разных странах, и в Беларуси тоже, – в наличии у предприятия замечательных партнеров.

А что в Европейском союзе?

Движущей силой новой энергетической политики ЕС служит обновленная Директива по энергетическим характеристикам зданий. Она устанавливает стандарт близкого к нулевому энергобаланса для новых зданий начиная с 2021 г. Производству энергии на децентрализованной основе, например в Германии, способствуют законы о возобновляемых источниках энергии (Erneuerbare-Energien-Gesetz – EEG) и системах отопления (EEWärmeG).

Новая энергетическая политика ЕС означает отсутствие централизации в производстве электроэнергии. Ее должны вырабатывать многочисленные децентрализованные установки – от фотоэлектрических панелей на крышах односемейных домов до мощных офшорных ветроэнергетических станций. Для подключения всех производящих и потребляющих электричество компонентов предусматривается умная энергосеть (Smart Grid).

Здания новой энергетической эпохи отличаются собственными генераторами и аккумуляторами энергии, а также соответствующими системами управления и защиты. При этом умная сеть определяет, где и сколько энергии требуется, и гармонизирует ее расход и поставку на местном уровне с учетом наличия других потребителей и поставщиков электроэнергии.

Функционирование как отдельных зданий с близким к нулевому энергобалансом (зданий с нулевым энергопотреблением, нулевых зданий), так и умных энергосетей в целом немыслимо без соответствующих систем автоматизации и дигитализации передачи данных. Развитие этой сферы в ЕС идет стремительными темпами.

Архитектурно-технический прототип зданий с близким к нулевому энергобалансом – пассивный дом. Таковым для Беларуси, вероятнее всего, суждено стать МК-дому в Дзержинске.

МК-дом шагает по планете

Архитектор Габриэль Голумбеню (Gabriel Golumbeanu), разработчик строительных концепций компании Saint-Gobain Insulation, остановился на сути концепции МК-дома и ее реализации в разных странах мира.

Из слайдов презентации Г. Голумбеню:

– МК-дом, техническое решение которого базируется на концепции пассивного дома, – это:

1) минимальное потребление энергии на отопление и охлаждение;

2) сочетание биоклиматической конструкции и высококачественной ограждающей оболочки;

3) оптимальный тепловой комфорт как зимой, так и летом;

4) значительное энергосбережение;

5) превосходная акустика, основанная на классах акустического комфорта ISOVER;

6) постоянно высокое качество внутреннего воздуха;

7) визуальный комфорт за счет правильно организованного естественного освещения;

8) противопожарная защита и долговременная надежность;

9) жизнеустойчивость – благодаря учету экологических, экономических и социальных факторов во время всего срока эксплуатации;

– биоклиматическая конструкция обусловливается биоклиматической архитектурой. А такая архитектура имеет отношение к проектированию зданий и придомовых территорий, отражающему особенности местного климата. Основные элементы биоклиматической конструкции – пассивные солнечные системы, интегрированные в здания и использующие природные источники (например, солнце и ветер) для отопления, охлаждения и освещения здания;

– потребность МК-дома в тепловой энергии – не более 15 кВт•ч/м2 в год; полная потребность в первичной энергии – не более 120 кВт•ч/м2 в год; воздухопроницаемость при избыточном давлении 50 Па – не более 0,6 h–1;

– МК-дом обязательно должен иметь механическую приточно-вытяжную вентиляцию с рекуперацией теплоты вытяжного воздуха.

Словом, МК-дом являет собой фирменные сен-гобеновские версии пассивного дома "от Вольфганга Файста", при разработке которых учитываются, причем в максимально возможной мере, принципы устойчивого развития цивилизации в целом и потребности каждого человека в комфортной среде в частности.

Фрагменты отредактированной прямой речи Г. Голумбеню:

– Я считал, что зимой строить невозможно. Но местные строители доказывали обратное, причем даже в лютый мороз… Вы в Дзержинске работали в два раза быстрее, чем строители МК-дома в Румынии. И проблем здесь было в три раза меньше… Если, например, во всех помещениях будет поддерживаться температура +21 °С (или другая, но полностью приемлемая для жильцов), это и есть комфорт... Цель – устранить все потери тепла. Тогда не будет и потребности в обогреве. Будет одинаковая температура в середине комнаты и у окна. То же касается и теплого времени года. Если в доме большая площадь окон, нельзя не подумать о солнцезащите… Необходим и акустический комфорт. В местах большого скопления людей часто чувствуется нехватка свежего воздуха. С этим минусом тоже надо бороться… Если все стороны комфортности свести воедино, то и получится МК-дом.

Что касается богатого опыта строительства МК-домов от "Сен-Гобена" в разных странах, стоит обратить внимание на два крупных эксперимента.

В 2008 г. в Дании были сданы в эксплуатацию десять МК-домов различного архитектурно-конструктивного типа. И во всех случаях получилось то, что задумывалось, а именно – МК-дом. Примечательное обстоятельство – владельцы восьми из этих зданий получили сертификат пассивного дома. А он не одну тысячу евро стоит. Датский проект также продемонстрировал, что даже в регионах, которые не считаются солнечными, можно успешно утилизировать радиацию нашей главной звезды для энергоснабжения зданий.

Задача второго эксперимента – исследовать на разных стадиях (проектирование, строительство, эксплуатация) МК-дома в городах пяти разных климатических зон: Токио, Шанхае, Дубае, Лас-Вегасе и Екатеринбурге. Любопытны характеристики многоквартирного уральского здания, функционирующего в условиях очень холодного континентального климата: коэффициент теплопередачи наружных стен и толщина соответствующего утеплителя ISOVER – 0,064 Вт/м2>К (обратная величина, примерно равная сопротивлению теплопередаче, – 15,625 м2>>С/Вт) и 50 см; то же для крыши – 0,042 Вт/м2>К (23,810 м2>>С/Вт) и 80 см; коэффициент теплопередачи окон – 0,67 Вт/м2>К (1,493 м2>>С/Вт).

Г. Голумбеню также объяснил, что МК-дома следует проектировать, используя специально разработанное программное обеспечение, и подчеркнул, что оно уже не раз проверено в работе.

Быть первопроходцами
всегда сложно

Дипломированный инженер-архитектор Инго Хёффле (Ingo Höffle), сертифицированный проектировщик пассивных домов из компании r-m-p passivhaus architekten und ingenieure (Мангейм, Германия), поведал об опыте проектирования и строительства пассивных домов – своем и компании. Вот фрагменты изложения его выступления:

– Наша компания занимается строительством пассивных домов уже лет 10. Быть первопроходцами всегда сложно. Так, мы работаем консультантами по проектированию и строительству первого в мире энергопассивного госпиталя. Он должен быть сертифицирован как пассивный дом. В этом определенная проблема, поскольку никаких критериев для сертификации такого типа зданий, как пассивных, пока нет. Но в любом случае в 2013 г. поставленную задачу нам следует решить.

Отдельная история – реконструкция. Не всегда просто приспособить существующие конструкции для обеспечения воздухонепроницаемости ограждающей оболочки здания. Возникают проблемы при соединении старых и новых элементов. Иной раз очень трудно отыскать пространство для новых вентиляционных и иных инженерных систем. А самое главное – нельзя забывать о расходах. Не всегда доведение существующего здания до стандарта пассивного дома оказывается экономически оправданным.


]]>]]>Для примера – офисное здание нашей компании. Главной целью здесь было доказать, что энергопассивности можно добиться и при реконструкции. Кстати, на верхних этажах – квартира моего босса. Так вот, потери тепла было решено снизить на 93%, выбросы парниковых газов – на 91%, а комфортность повысить, образно говоря, на все сто. По большому счету, реконструкция для достижения подобных показателей не является экономичной. Впрочем, в данном случае нам здорово помогли представители марки ISOVER. Они предложили нам оптимальные – и по стоимости тоже – тепло- и звукоизоляционные решения.

В случае пассивного дома принципиально важно добиться наилучшего соотношения между отапливаемым объемом и площадью поверхности ограждающей оболочки. Можно, конечно, усложнять формы здания, но каковы будут последствия?.. Неправильное взаиморасположение двух объемов одного и того же здания увеличивает – и порой намного – площадь его оболочки по сравнению с правильным вариантом. Например, увеличение этой площади на 10% может потребовать дополнительно 2 см толщины утеплителя.

Особый вопрос – сертификация пассивных домов. Она недешевая. Например, в случае коттеджа стоит 3–4 тыс. евро. Но без сертификата пассивный дом не может быть полноценным объектом недвижимости, его практически невозможно нормальным образом продать, сдать в аренду и т.д.

Солнечный дом на своем месте

Архитектор Александр Кучерявый, автор проекта дзержинского МК-дома, судя по реакции зала, заслужил на конференции приз зрительских симпатий. Вот избранные места его выступления:

– МК-дом – это энергоэффективность, микроклимат, экология. Энергоэффективность обеспечивается за счет минимального потребления невозобновляемой энергии, микроклимат – за счет механической приточно-
вытяжной вентиляции с рекуперацией теплоты вытяжного воздуха, минимальное воздействие на окружающую среду – за счет выделения в атмосферу малого количества парниковых газов. Мультикомфортность, в частности, заключается и в том, что МК-дом отвечает самым высоким требованиям по акустике и звукоизоляции, пожарной безопасности и долговечности.

В случае нашего МК-дома надо хорошо утеплиться – в три раза лучше, чем по сегодняшним белорусским нормам. Но утепление в пассивном доме идет рука об руку с воздухонепроницаемостью. Будем делать соответствующий тест давлением, причем на стадии черновой отделки, чтобы увидеть щели и другие дефекты, которые надо устранить. И такой теплофизический нюанс – окна в дзержинском доме призваны не только задерживать в помещениях тепло, но и пропускать до 50% солнечной радиации для зимнего отопления.

Отмечу, что "Сен-Гобен" разработал все конструктивные узлы МК-дома и сертифицировал их в Институте пассивного дома в германском Дармштадте. Но в Беларуси свои местные условия, поэтому в базовые решения МК-дома нам пришлось вносить определенные изменения. Здесь должно быть свое решение мультикомфортного дома.

Честно говоря, ожидали от меня не того архитектурного решения, какое сейчас воплощается в жизнь в Дзержинске. У многих современный дом ассоциируется с поражающими воображение формами. Считаю, сегодня архитектура лишена своего "местного" лица. Смотрим на здание и легко представляем его в другой стране мира. А здания и сооружения следует привязывать к контексту среды.

Мной была проанализирована ситуация в Дзержинске с точки зрения архитектурной эстетики. И я пришел к традиционной форме здания с двухскатной крышей. Окружение обязывает – рядом стоят чудные домики. Мечтаю: идет бабуля, видит наш МК-дом и восклицает: "Які файны домік!", а не: "Понастроили тут!". Важный декоративный элемент нашего дома – белорусский орнамент. Есть в Дзержинске улица Островского, на ней несколько домов с таким декором. Это гениально! Ведь минимальными средствами (белый и красный кирпич) достигнут максимальный художественно-образный эффект. Орнамент как явление нашей культуры лег в эстетическую основу фасада и интерьеров. Главный, западный, фасад олицетворяет собой солнце. Тем самым выражается сущность дома, которому надлежит использовать максимум солнечного тепла. Северный фасад – семантика двора, ведь у нас, подчеркну особо, усадебный дом. На восточном фасаде – интерпретация узоров белорусских рушников. Проектированием интерьеров занималась архитектор внутренних пространств из Польши. На основе белорусского орнамента она разработала систему керамических плиток. Это объединило экстерьер и интерьеры – и образ дома стал целостным.

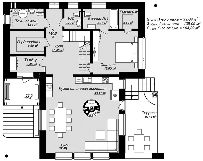
На первом этаже находятся терраса, тамбур (он включен в отапливаемый контур), техническое помещение, просторный холл с туалетом рядом, гардеробная (в ней можно проконтролировать работу инженерных систем дома), хозяйская спальня с ванной и гардеробной, а также главное помещение с тремя большими окнами. Оно ориентировано на юг и служит накопителем солнечной энергии. Главное помещение объединяет кухню, столовую и гостиную. Центр композиции здесь – очаг с духовкой и камином.

О втором, мансардном этаже. За счет большого проема в перекрытии между антресолью, примыкающей к лестнице, и южной стеной получился второй свет. Это пространство, над которым еще и мансардные окна, помогает эффективно распределять полученное от солнца тепло. Детская комната имеет западную ориентацию, дочка хозяев сможет тут делать уроки при естественном освещении. Вообще, в дзержинском МК-доме электрическое освещение будет включаться поздно. Еще на втором этаже – ванная, гардеробная и универсальная комната со своей ванной. Эта комната может быть гостевой, кабинетом или второй детской. Дом четко сориентирован по странам света. Основные помещения имеют южную, западную и восточную ориентацию. А на севере – буферная зона из подсобных площадей.

Об основных инженерных системах дзержинского дома: 60–80% потребности в горячей воде покроют солнечные коллекторы, 40% электроэнергии возможно получить за счет фотоэлектрических панелей, а впоследствии до 60% – за счет ветроэнергетической установки с трехлопастным геликоидным ветроротором (это белорусская разработка). Еще предусмотрен грунтовый теплообменник: труба длиной 80 м зарыта на глубину 2 м. Грубо говоря, зимой мы взяли с улицы воздух с температурой –25 °С, а в вентиляционную установку он поступил с температурой – (15–10) °С. Летом же грунтовый теплообменник работает на охлаждение воздуха. Предусмотрен в доме и газовый котел конденсационного типа.

Стоит подчеркнуть, что в ходе проектирования необходимо было добиться сбалансированных архитектурных и инженерных решений.

Экономические моменты. Сравним обычный дом с отапливаемой площадью 200 м2 и наш МК-дом (у него, напомню, та же площадь). У первого годовой удельный расход на отопление (в соответствии с действующими в Беларуси нормами) – 108 кВт•ч/м2, у второго – 22,5 кВт•ч/м2. В месяц за отопление первого дома нужно заплатить примерно 42 доллара, второго – примерно 10 долларов. Экономия – 77%. Если учесть еще горячую воду и электроэнергию, то стоимость трех "коммунальных" позиций окажется для МК-дома в Дзержинске равной 22 долларам в месяц.

Деревянные двутавры – сила!

Алексей Тарнагурский, директор ООО "Современный каркасный дом", рассказал об особенностях современных каркасных технологий строительства домов и экономической стороне дела на примере своего собственного МК-дома в Дзержинске. Далее – изложение части выступления директора:

– Мы выбрали финскую и шведскую технологии устройства каркасного несущего остова на основе двутавров с полками из деревянного бруса и стенкой из ориентированно-стружечной плиты. У скандинавов толщина теплоизоляции по нормам гораздо больше, чем у нас. Так, в Швеции нормативный коэффициент теплопередачи для стен равен 0,1 Вт/м2>К.

На изготовление двутавра уходит в три раза меньше древесины по сравнению с балкой прямоугольного сечения той же несущей способности. Это тем более важно, что в Беларуси мы постоянно сталкиваемся с нехваткой качественного строительного леса. А произвести брус сечением 38 на 89 мм для двутавра намного легче, чем брус сечением 150 на 300 мм для цельнодеревянной стойки или балки.

Деревянные двутавры нашего производства, из которых выполнен каркас МК-дома, легкие (1 погонный метр двутавра высотой сечения 450 мм весит 5,2 кг), их просто обрабатывать, через них можно прокладывать коммуникации. Двутавровые стойки нашего дома выдерживают нагрузку на сжатие до 8 т. Для организации второго света мы применили двутавры длиной 9,5 м. Могут быть деревянные двутавры длиной 12 м. Их используют и как стропильные балки, и как балки перекрытия.

Деревянные двутавры с полкой из ориентированно-стружечной плиты появились в 1990-е гг. в США. Но в Беларусь почему-то новые технологии приходят с опозданием. И к ним наши люди относятся с подозрением, не понимая, что они лучше цельнодеревянных брусьев. А ведь в мире 84–86% людей живут в деревянных каркасных зданиях. Кстати, дома с каркасом из деревянных двутавров, по американским данным, выдерживают порывы ветра скоростью 178 км/ч.

В нашем МК-доме мы ушли почти от всех "мостиков холода". Толщина утеплителя из минеральной ваты ISOVER в стенах – до 400 мм. Если даже где-то намечается "мостик холода", он перекрывается изнутри и снаружи утеплителем. Во многих зданиях углы – слабое теплотехническое место. Углы здания полностью заполняются утеплителем. Каркас дома обшивается придающими ему необходимую жесткость гипсоволокнистыми плитами Rigidur.

Фундамент в виде сплошной плиты очень хорош. Но в нашем случае перепад высот на площадке составил 1,4–1,6 м. Поэтому фундамент дома в Дзержинске свайный монолитный. Мы уходим от промерзания нижней конструкции, так как весь контур дома будет утепленным.


Мы вели параллельно проектирование и строительство. Кое-что, теперь видим, могло быть иначе. Например, лучше было применить для перекрытия деревянный двутавр высотой не 250, а 350 мм, чтобы больше возможностей появилось для прокладки воздуховодов. Однако по несущей способности
проходила 250-я балка, поэтому ее и применили. Но это не критично.

Отделка планируется без особых изысков, без венецианской штукатурки. Вместе с тем на нашей стройке мы не используем бюджетные материалы. У нас все самое качественное. Окна будут с роллетами. Предусмотрена автоматика. В МК-доме столько инженерного оборудования, что без нее никак не обойтись.

Стоимость квадратного метра нашего дома должна составить примерно 1500 долларов. Это с учетом оплаты труда и НДС. Значит, полная стоимость – примерно 300 тыс. долларов. Если взять цены на жилье по Минску, то 900 долларов – это минимальная стоимость квадратного метра. А хорошее жилье в более-менее хорошем столичном районе обходится в 1400–1800 долларов за квадратный метр.

Закончив работу над МК-домом в Дзержинске, будем и дальше продвигать тему энергоэффективности. Хочу, чтобы моя дочь через тридцать лет увидела этот мир хотя бы таким, какой он сейчас. А то прогнозы будущего планеты просто пугающие.

Выступили и другие

На конференции высказались многие специалисты, представлявшие партнеров по реализации проекта МК-дома в Дзержинске. Борис Кучумов из отдела СООО "Сен-Гобен Строительная Продукция БелРус" рассказал о теплоизоляционных материалах ISOVER для энергоэффективных конструкций, Сергей Зенченко из ИП "ВЕЛЮКС Мансардные окна" – о современных подходах к оценке энергоэффективности мансардных окон в ЕС, энергобалансе и опыте использования мансардных окон в активных домах, Сергей Бурдин из ООО "НИЦ Магистр" – об энергоэффективных системах вентиляции с рекуперацией тепла, Екатерина Колотушкина из "Сен-Гобен Строительная Продукция Рус" – об актуальных энергоэффективных строительных проектах в России, Дмитрий Дмитриев из ООО "ВЕКА Рус" – об опыте использования энергоэффективных окон в строительстве, Александр Подгорный из ИП "Рехау" – о системных решениях компании Rehau для пассивных домов, Константин Митрахович из ООО Vaillant GmbH – о фирменных газовых технологиях в отоплении и о гелиосистемах auroSTEP.

Ждать осталось недолго

12 апреля на стройке первого в Беларуси МК-дома ярко светило солнце. Но даже если бы небо было затянуто тучами, все равно строящийся объект выглядел бы в самом лучшем свете. Его конструкции смотрелись качественными, надежными и… теплыми. Теплыми едва ли не в буквальном смысле слова – столь завидное материально-визуальное единство образуют древесные материалы и минеральная вата ISOVER. Впечатлило также то, что дзержинский дом при ближайшем рассмотрении кажется более значительным, чем на презентационных картинках. Словом, партнеры по белорусскому МК-дому очень стараются и, похоже, еще в этом году введут его в нормальную эксплуатацию.

 

 

 

 

Читайте также
28.02.2007 / просмотров: [totalcount]
Здания, как и люди, не исчезают, пока о них помнят...   ХХ в. в архитектуре ознаменован появлением нового типа зданий – высотных. И в...
16.09.2010 / просмотров: [totalcount]
Международная архитектурная премия «World Habitat Awards» была учреждена в 1985 г. Фондом строительства и социального жилья в рамках...
14.02.2011 / просмотров: [totalcount]
H&E Housing – пилотный проект, реализуемый в Париже в рамках стратегии экологического развития. Говоря в целом, этот объект должен...