Вы здесь

Реконструкция школ в малых городах

Практика показывает, что чаще всего подход к реконструкции школ носит стихийный характер. Эта ситуация особенно остра в старых городах с существующей инфраструктурой и сложившейся демографической ситуацией. Если мы говорим об экспансивной стратегии развития города за счет комплексного формирования новых микрорайонов, то у проектировщиков есть все средства для адекватной оценки демографических и транспортных аспектов на стадии планирования. В случае же демографических изменений в пределах сложившегося района задача проектировщиков резко усложняется. Такая реконструкция чаще всего проводится как одноразовый частный проект, предполагает каждый раз создание заново концептуальной базы, включающей аспекты социально-эстетические, педагогические, технологические, демографические. Проблема заключается в том, что эта работа носит эпизодический и бессистемный характер.

Всем странам свойственна хроническая недооценка проблем образования. Городские и государственные бюджеты, к сожалению, чаще всего латаются за счет сокращения образовательно-просветительских программ и средств на финансирование образования и культуры. В такой ситуации требуется понимание проблемы, наличие доброй воли и личная заинтересованность руководителей всех уровней, включая первых лиц.

Модель школьного здания формируется под влиянием целого ряда требований – педагогических, гигиенических, психологических, социальных. Педагоги активно изучают методы учебной и воспитательной работы и предлагают режимы их осуществления. Гигиенические исследования наметили перечень антропометрических и эргономических данных, определяющих характер рабочего места школьника, условия его оптимального освещения. Психологи изучают отношения между детьми в пределах своей возрастной группы и на межгрупповом уровне и строят модель пространства, способствующего налаживанию этих отношений.

Каждая из названных групп требований меняется в зависимости от развития тех научных направлений, в рамках которых они складываются. К примеру, американская психологическая модель предлагала тесный контакт между возрастными группами, а европейская – их изоляцию друг от друга.

Представленный в статье материал освещает опыт комплексной модернизации учреждений образования и первые результаты реализации такой программы на примере Герцлии1. Герцлия является сложившимся городом, исчерпавшим свои территориальные резервы. Проблема усугубляется отсутствием возможности расширения его границ и включением новых площадей под строительство, которое ведется за счет уплотнения существующей застройки. Ввод в эксплуатацию новых жилых объектов приводит к локальному дисбалансу демографической ситуации в данной точке города. Такой дисбаланс не может быть выправлен путем строительства новой школы и тяжелым бременем ложится на существующую.

В отличие от всех моделей реконструкции, перманентно применявшихся в этом городе, с 2007 г. личным решением мэра Яэль Герман по предложению архитектора Юваля Регева была создана комплексная всеобъемлющая программа изучения состояния школьных учреждений и выработки предложений по их модернизации в соответствии с универсальной моделью учебного заведения.

Эта программа рассчитана на пять лет и включала на первом этапе:

  • создание многопрофильной рабочей группы, состоящей из архитекторов, конструкторов, сотрудников муниципалитета. Цель ее – разработка программы обновления всей сети школьных и дошкольных учреждений города. Работа началась со статистической обработки таких данных, как возраст школы и даты проведения текущих ремонтов в прошлом, количество учеников и прогноз на будущее;
  • детальное обследование всех существующих школьных зданий. Оно включило в себя оценку физического состояния конструкций здания, отделочных материалов, состояния инженерных сетей, уровня освещенности, доступности для лиц с ограниченными физическими возможностями2, состояние участка;
  • встречи с руководством школ, педагогическим коллективом, членами родительского комитета для выяснения текущих потребностей изменений в учебном процессе и учете технологических новшеств.

На этом этапе были собраны мнения педагогов о существующих недостатках и их предложения о возможных дополнениях и изменениях в планировке. В результате в оптимальную модель школы было включено, например, помимо учительской помещение с отдельными персональными боксами для индивидуальной работы педагогов (рис. 4).

Для работы с малыми группами учеников (до 10 человек) оборудованы беседки на открытом воздухе (рис. 5). Во многих случаях потребовались значительные усилия для обеспечения нормативной освещенности.

Полученные материалы позволили перейти ко второму этапу:

  • разработка принципиальной модели школьного здания (типовой генплан, модули помещений для школьников и педагогов – типовых и вновь предлагаемых);
  • экономический расчет исходных пространственных модулей, позволяющих определить расходы на модернизацию каждой конкретной школы;
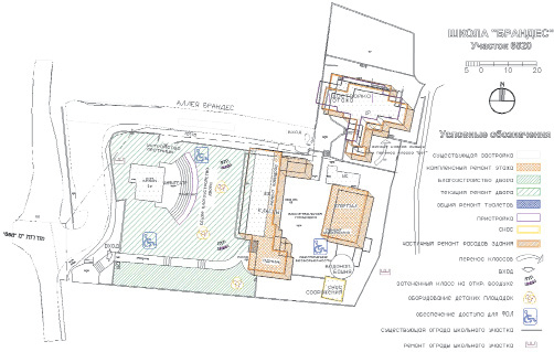
  • составление программы реконструкции каждой конкретной школы, включающей генеральный план участка с указанием основных проблемных позиций (рис. 6).
  • ранжирование школ и определение очередности проведения в них работ.

Третий этап включал:

  • согласование проекта и утверждение его к исполнению в предлагаемых объемах;
  • определение его бюджета;
  • установку сроков окончания работ;
  • подготовку рабочей документации архитектурно-конструкторской части;
  • организацию конкурса подрядчиков;
  • выполнение запланированных на текущий год работ.

Сравнение рис. 6 и 7 показывает, что каждая школа обладает своим набором конфликтных ситуаций, рис. 8 – объемы проводимых строительных работ во второй из сравниваемых школ.

Реализация началась. Результаты модернизации некоторых объектов первой очереди приведены на рис. 9–11. Окончание программы покажет, насколько она удачна и жизнеспособна.

Автор приносит благодарность творческой мастерской Юваля Регева за любезно предоставленные материалы.

 

 

 

 

Читайте также
23.07.2003 / просмотров: [totalcount]
Целевые ориентиры. Многие малые и средние городские поселения Беларуси имеют богатую историю и обладают ценным историко-культурным наследием,...
23.07.2003 / просмотров: [totalcount]
Туризм – одно из наиболее динамичных явлений современного мира. В последнее время он приобрел колоссальные темпы роста и масштабы влияния на...
23.07.2003 / просмотров: [totalcount]
Гольшаны, пожалуй, единственное в Беларуси местечко, которое сохранило свое архитектурное лицо. Что ни дом — то бывшая мастерская, или лавка, или...